Porzione di bifamiliare In vendita

CARATTERISTICHE IMMOBILE

  • Riferimento Bifa La Presa
  • Comune Pescantina
  • Zona Settimo
  • Prezzo€ 530.000,00
  • Tipologia Porzione di bifamiliare
  • Mq250 m²
  • Camere3
  • Bagni 3
Descrizione

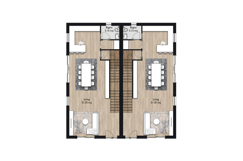
SETTIMO DI PESCANTINA - Nuovo progetto che prevede la realizzazione di un fabbricato bifamiliare costruito con le più moderne tecnologie che la bioedilizia prevede. Ogni porzione, totalmente indipendenti tra loro, sarà composta dall'abitazione su due livelli caratterizzata da grandi spazi interni con una zona giorno di ca. 51 mq calpestabili ed un reparto notte con tre camere da letto tutte ben dimensionate; i bagni, tutti finestrati, sono a servizio di entrambi i piani ( 1 zona giorno, 2 zona notte ) e la proprietà è completata da un piano interrato che offre la possibilità di realizzare una grande taverna, un bagno-lavanderia ed una doppia autorimessa affiancata.
Non può mancare un'area esterna a verde esclusivo di 240 mq.

Questo nuovo intervento è inserito all'interno di una piccola area ( tot. 7 lotti ) ad esclusivo indirizzo residenziale, dove altri utenti privati stanno già progettando la propria abitazione monofamiliare.

Potrai godere dei benefici che una casa in bioedlizia in classe energetica A4 può garantire, abbattere notevolmente i tempi d'attesa, mantenendo i vantaggi di personalizzare la "tua" nuova casa.

CINQUE MOTIVI PER SCEGLIERE UNA CASA IN LEGNO

Sei affascinato dal mondo del legno ma ancora non lo conosci così bene? Ecco cinque validissimi motivi per scegliere il legno per la tua prossima casa:

1. Elevato Comfort Termico
Il legno è un ottimo isolante termico naturale. È in grado di regolare naturalmente l’umidità presente nell’aria e favorisce così il benessere interno dell’abitazione.

2. Diminuzione del fabbisogno energetico
L’alto valore isolante del legno permette anche di mantenere la casa naturalmente calda in inverno e fresca d’estate. Questo vuol dire ridurre notevolmente le spese di riscaldamento e, in generale, il fabbisogno energetico..

3. Elevata resistenza Antisismica
Le case in legno risultano essere solide, stabili e sicure. Il legno è un materiale elastico, duttile e più leggero del cemento. Per questo resiste meglio alle sollecitazioni delle scosse e ha ottime prestazioni di inerzia sismica.

4. Durabilità nel tempo
Una casa in legno correttamente costruita può durar, in teoria, più di 500 anni. La maggior parte delle abitazioni superano agevolmente i 50 anni,con una manutenzione accurata. Il legno, insomma, non è un materiale fragile.

5. Il legno è ecosostenibile
Il legno è un materiale da costruzione con un bilancio positivo di CO2 e richiede meno energia primaria durante la costruzione. Sceglierlo come materiale costruttivo della propria abitazione significa prediligere un materiale naturale, ecologico, rinnovabile e riciclabile.

Prenota un appuntamento per visionare il progetto ed effettuare un sopraluogo in zona.

 

VIDEO

ALTRE CARATTERISTICHE

  • Anno Costruzione: 2021
  • Locali: 5
  • Soggiorno: 1
  • Cucina: a vista
  • Box/Garage: Doppio
  • Stato stabile: nuovo
  • Finiture: nuovo
  • Riscaldamento: pavimento
  • Tipo Riscaldamento: pannelli
  • Giardino Privato
  • Entrata indipendente
  • Balcone
  • Taverna
  • Citofono

PIANTINE

Richiedi informazioni

La salvaguardia della riservatezza dei dati personali costituisce per Gruppo Scaligera di Zolin Cristian un impegno primario; per tale ragione le nostre attività Web vengono gestite in accordo con le leggi sulla protezione e sulla sicurezza dei dati. Il presente documento, denominato "Privacy Policy", contiene informazioni relative alla raccolta e alla gestione dei dati relativi agli utenti da parte di Gruppo Scaligera di Zolin Cristian . Questa Policy potrà essere modificata o aggiornata per adeguarsi alle caratteristiche dei servizi offerti da Gruppo Scaligera di Zolin Cristian.

Ai sensi dell'art.13 del Regolamento UE 679/2016 si dichiara quanto segue:

1. Raccolta e utilizzo dei dati personali Raccogliamo due generi di informazioni riguardanti il profilo dei nostri visitatori: informazioni personali (es. nome, società, indirizzo e-mail, ecc.) fornitoci volontariamente dall'utente, ed informazioni aggiuntive relative ai dati di navigazione (es. numero di visitatori che si registrano sul nostro sito, pagine a cui accedono, etc.).
Il trattamento che verrà compiuto sui dati personali forniti potrà comprendere le seguenti attività: raccolta, registrazione, organizzazione, conservazione, elaborazione, modificazione, comunicazione, cancellazione e distruzione.
La finalità del trattamento ha il solo scopo di poter erogare le nostre prestazioni di servizi richiesti dall’interessato e consentire la necessaria gestione, oltre l'esercizio di attività che comprendono a titolo esemplificativo:
1. elaborazione di dati per statistiche interne;
2. attività operative per la gestione interna.
La compilazione di moduli (form), o l'invio di messaggi mediante il sito www.grupposcaligera.it, comporta il consenso al trattamento dei dati personali forniti e per le finalità sopra citate. Le informazioni che verranno raccolte attraverso i vari moduli di iscizione a servizi di www.grupposcaligera.it saranno trattate, protette e controllate, nel rispetto delle misure di sicurezza, con mezzi in grado di prevenire il rischio di perdita o distruzione, di accesso non autorizzato o di trattamento non consentito, ovvero di lesione all'integrità o alla riservatezza dei dati.
Gruppo Scaligera di Zolin Cristian si riserva la facoltà di fornire i dati raccolti a soggetti terzi, ad essa legati per servizi di gestione, mantenimento e funzionamento del suo sito internet oltre che per esigenze interne e per ottemperanza ad obblighi di legge.
Sui terzi così individuati, comunque, grava il divieto di utilizzare le informazioni, a cui possono accedere (al fine di fornire i servizi sopra elencati), per fini diversi dalla fornitura del servizio stesso.
2. Sicurezza nella trasmissione dei dati In ottemperanza a quanto richiesto Regolamento UE 679/2016, il sito di Gruppo Scaligera di Zolin Cristian ha messo in atto procedure fisiche, elettroniche e organizzative per salvaguardare le informazioni che l'utente ha fornito on line, contro la perdita, l’utilizzo improprio o errato nonché da alterazione e assicurare la sicurezza di tali dati. E' importante ricordare che i dati personali vengono forniti al sito attraverso internet viaggiando attraverso sistemi che non sono controllabili o controllati da Gruppo Scaligera di Zolin Cristian e potrebbero essere intercettati da terzi non autorizzati.
3. Links esterni Il sito web www.grupposcaligera.it potrebbe contenere link ad altri siti web, gestiti da società collegate o non collegate a Gruppo Scaligera di Zolin Cristian. Quest'ultima non è responsabile per i contenuti ed il rispetto della normativa sulla Privacy da parte di siti collegati a cui si è fatto riferimento. Si consiglia pertanto di leggere attentamente la dichiarazione sulla privacy di ciascun sito visitato.
4. Diritti degli interessati. Accesso ai dati e reclami. Gli artt.15-22 del Regolamento UE 679/2016 stabiliscono i diritti che possono essere esercitati dall’interessato in merito al trattamento dei dati conferiti.
In particolare l'interessato può ottenere dal titolare la conferma dell'esistenza o meno di propri dati personali e che tali vengano messi a disposizione in forma comprensibile. L'interessato può altresì chiedere di conoscere l'origine dei dati, nonché la logica e le finalità su cui si basa il trattamento. Gruppo Scaligera si impegna ad un'equa e rapida risoluzione all'insorgere di qualsiasi controversia sulla politica della privacy.
5. Consenso espresso dell'interessato 
Con apposita ulteriore informativa potrebbe essere richiesto il consenso espresso dell'interessato all'utilizzo dei dati da parte di Gruppo Scaligera di Zolin Cristian per finalità diverse da quelle precedentemente indicate, in particolare per invio di materiale pubblicitario e per invio di informazioni commerciali.
5. Conservazione dei dati 
I dati personali verranno conservati per il tempo necessario all’espletamento di tutti gli adempimenti necessari per dare riscontro alle richieste degli interessati. I dati personali, dei quali non è necessaria la conservazione in relazione agli scopi per i quali sono trattati (es. semplici richieste di informazioni a cui non segue l’instaurazione di un rapporto contrattuale), verranno conservati per 12 mesi e successivamente cancellati o trasformati in forma anonima, come per legge

6. Titolare del trattamento dei dati personali 
Gruppo Scaligera di Zolin Cristian, Piazza degli Alpini 10 – 37026 Pescantina (VR). 
L'elenco aggiornato dei Responsabili del trattamento è disponibile presso il Titolare del trattamento; contattabile via email all'indirizzo: info@grupposcaligera.it o telefonando al n. 045 7157721